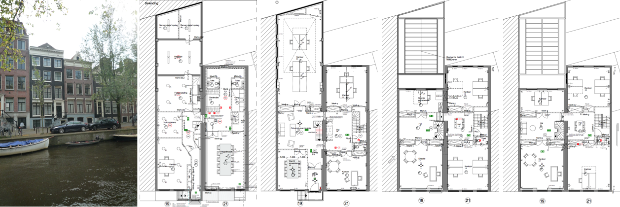
Leidsegracht plattegrond » Leidsegracht plattegrond