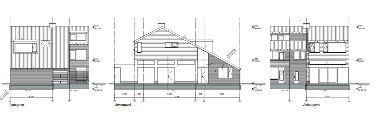
Kroosmeent gevelaanzichten » Kroosmeent gevelaanzichten