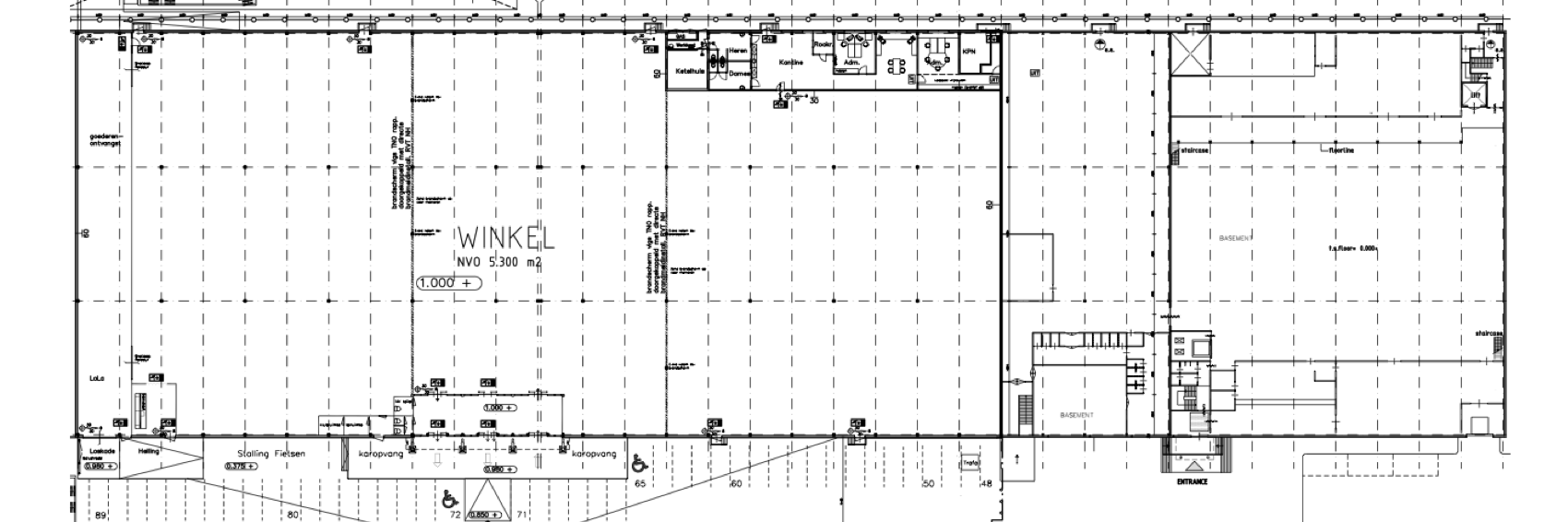
Gamma plattegrond » Gamma plattegrond