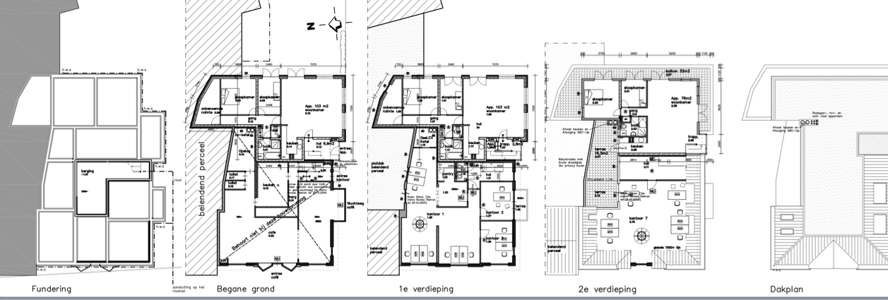
Hoogstraat plattegronden » Hoogstraat plattegronden